
Nhà thi đấu bơi lội và tắm hơi
Concept
Marbach am Neckar, Đức
08 / 2021
- Diện tích đất: 4.509,45 m2
- Diện tích xây dựng: 3.510,54 m2
- Diện tích sàn: 4.404,47m2
Marbach am Neckar, một thành phố nhỏ nằm ở bang Baden-Württemberg, phía tây nam nước Đức, nằm bên bờ sông Neckar, cách khoảng 20 km về phía bắc của thành phố Stuttgart, thủ phủ của bang. Thành phố cũng được biết đến là quê hương của Friedrich Schiller, một trong những nhà thơ, nhà viết kịch và triết gia nổi tiếng của Đức.
Sự kết hợp giữa hai dự án — cải tạo và tái sử dụng hồ bơi Hermann-Zanker-Bad cùng khu Nhà thi đấu bơi lội và tắm hơi — đã tạo nên một vòng cung kết nối giữa khu bảo tàng Schiller ở phía tây và khu trường học sôi động ở phía đông của thành phố. Quy hoạch tổng thể không chỉ định hình mối liên kết không gian mà còn nhấn mạnh sự hòa hợp giữa các yếu tố hiện đại và bối cảnh lịch sử, thể hiện rõ nét trên bản vẽ quy hoạch kiến trúc.
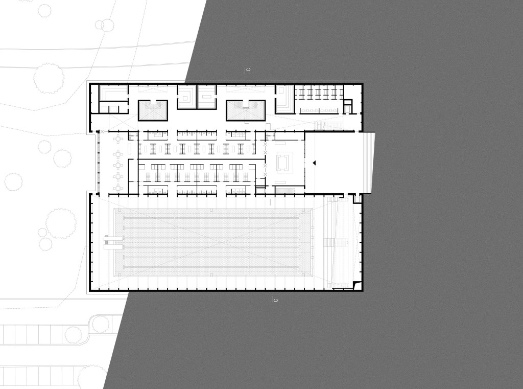
Tòa nhà thi đấu bơi lội và khu tắm hơi được thiết kế với ngôn ngữ kiến trúc rành mạch, tạo thành hai khu vực riêng biệt, phục vụ tối ưu cho mục đích bơi lội và thư giãn. Cấu trúc công trình lấy cảm hứng từ phong cách kiến trúc gỗ truyền thống (Fachwerkhaus) đặc trưng của khu phố cổ, kết hợp với sự vững chãi của nền móng tầng trệt bằng bê tông cốt thép.












