
Nhà di động tí hon
Concept
Tuebingen, Đức
09/ 2018
- Diện tích đất: 123,31 m2
- Diện tích xây dựng: 123,31 m2
- Diện tích sàn: 106,31 m2
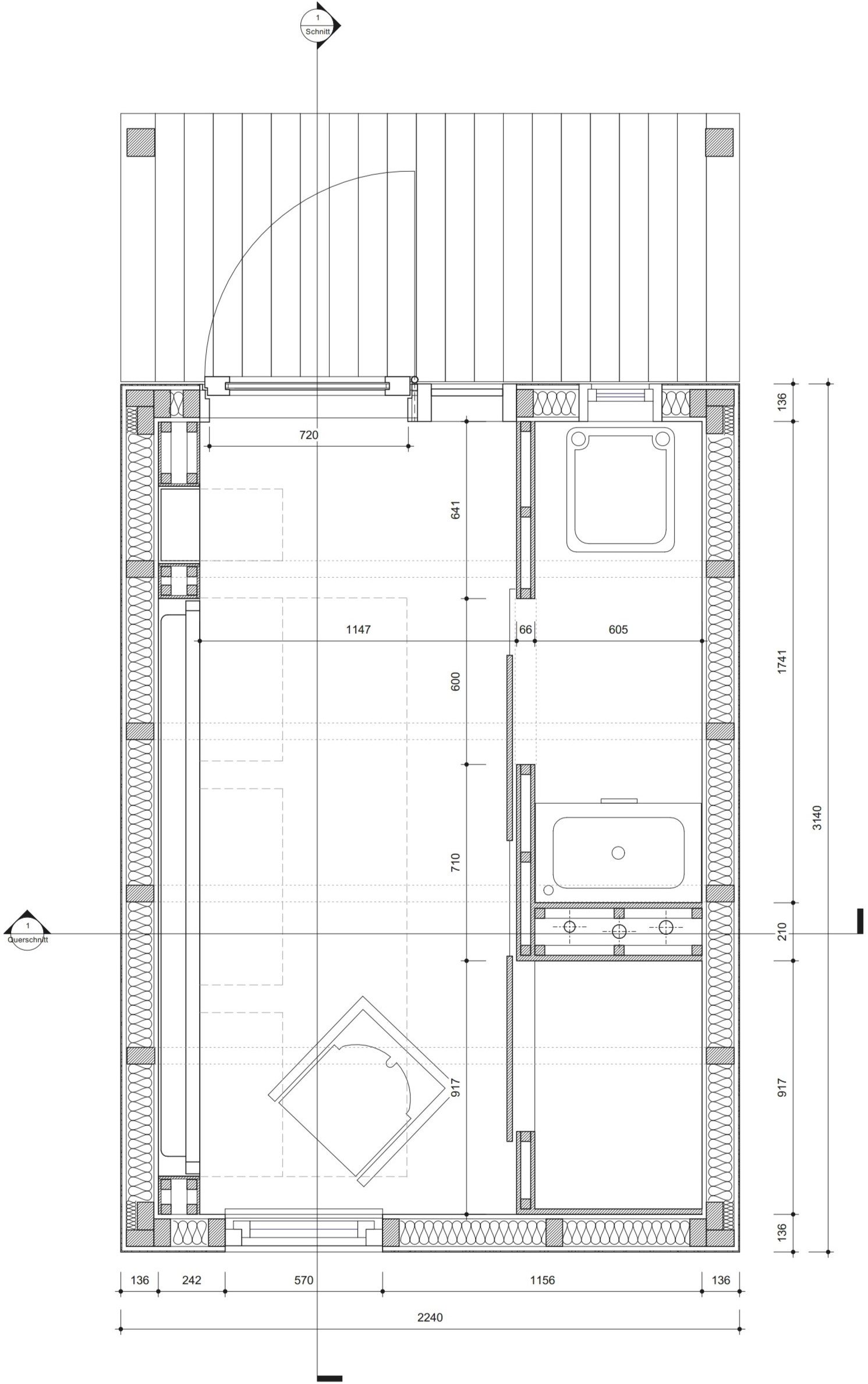
Nhà di động tí hon là một giải pháp kiến trúc tiên tiến, được thiết kế để đáp ứng nhu cầu về tính di động và sự linh hoạt trong lắp ráp cũng như lựa chọn địa điểm. Với khả năng triển khai trên nhiều loại địa hình, từ các bãi đỗ xe đô thị đến các khu cắm trại biệt lập, hệ thống kết hợp nhiều module mở ra khả năng ứng dụng rộng rãi mà không đòi hỏi cơ sở hạ tầng quá cao.
Dự án hướng tới việc cung cấp không gian sống an toàn và bền vững cho những người vô gia cư. Dự án nhận được sự hỗ trợ thông qua sự hợp tác với tổ chức xã hội Martin-Bonhoeffer-Häuser (MBH), đơn vị tiên phong trong việc hỗ trợ thanh thiếu niên, trẻ em và gia đình đang đối mặt với khó khăn.












